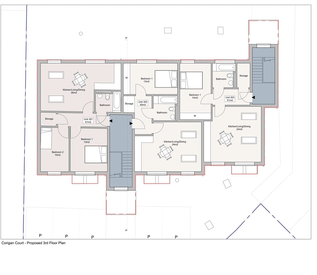
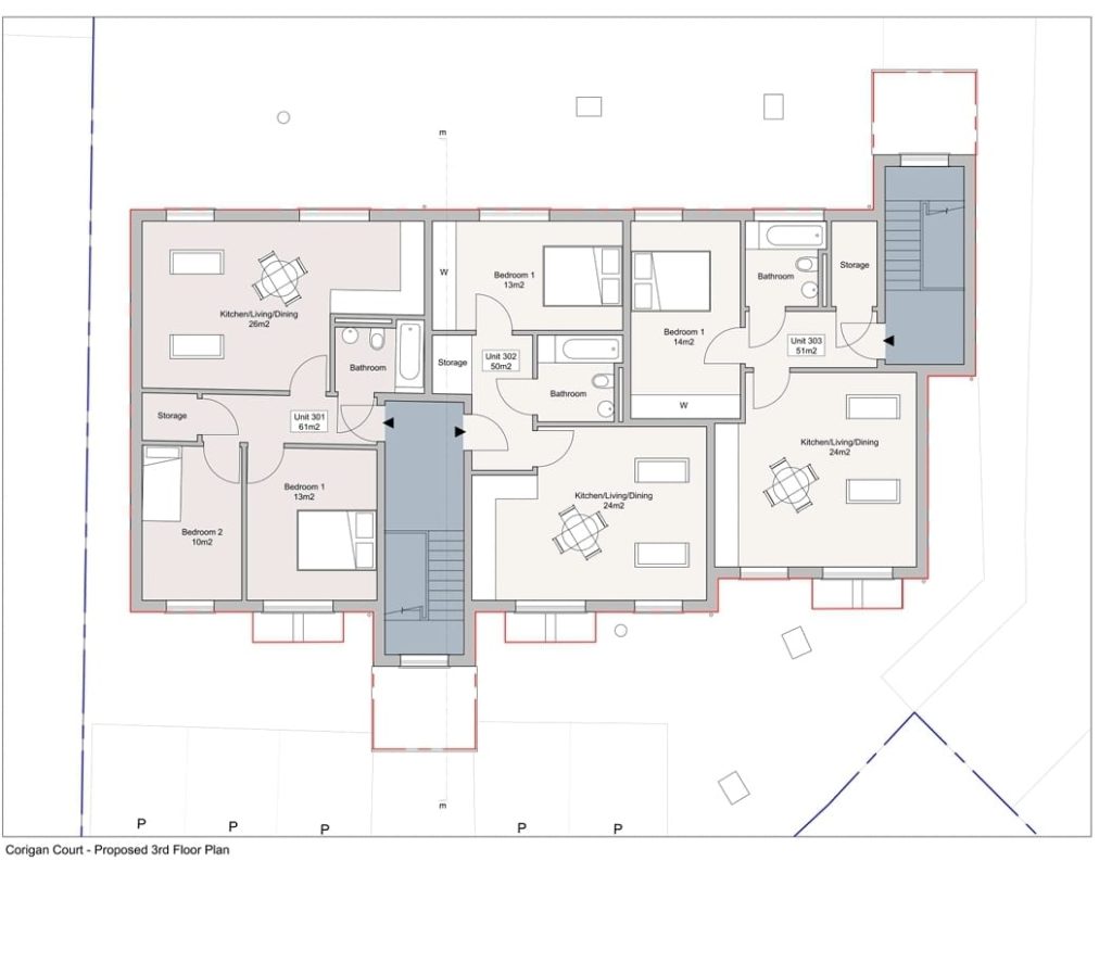
We are excited to announce a new development in the bustling Leytonstone area of East London. We are adding a third floor to three existing blocks, which will create 10 new, high-quality residential flats. These homes are being built to a high standard, designed to provide a beautiful and modern living space for new residents.